Projeto de arquitetura e interiores
Tipologia T3 | Remodelação total
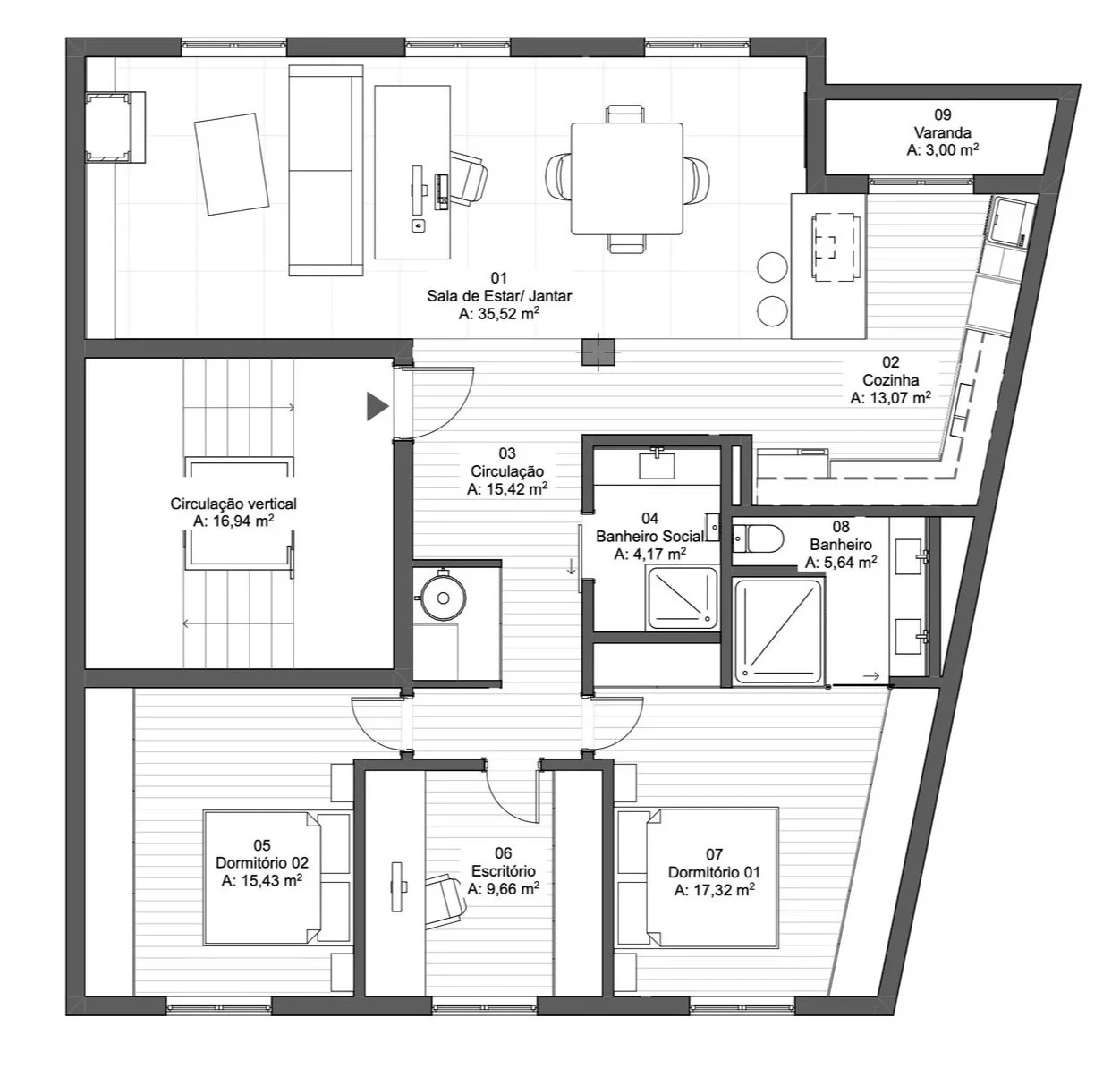
àrea : 130m²
Este projeto consistiu na remodelação total de um apartamento, com foco na reorganização espacial e na criação de ambientes mais funcionais e integrados. A intervenção procurou melhorar a relação entre as áreas sociais, através da integração entre sala de estar, jantar e cozinha, criando um espaço contínuo e mais fluido. A zona privada foi reorganizada para garantir maior conforto e privacidade, incluindo uma suíte, dois quartos adicionais e instalações sanitárias otimizadas. O projeto procurou equilibrar funcionalidade, clareza espacial e qualidade dos materiais, garantindo uma resposta adequada às necessidades do utilizador.

